In una delle vie più richieste di Morlupo, in via G.Carducci, proponiamo in vendita villa indipendente con giardino e vista panoramica.
DESCRIZIONE IMMOBILE
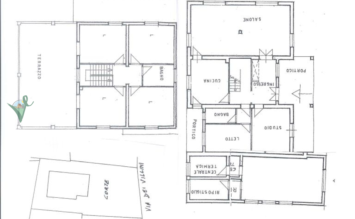
L'immobile con comodo ed esclusivo accesso misura circa 220 mq e si sviluppa ai piani terra e primo con ulteriori vani al piano seminterrato e secondo.
Al PIANO TERRA mediante un portico di ampie dimensioni si accede all'abitazione dove vi è un luminoso salone, disimpegno, cucina abitabile con accesso diretto al giardino, una camera da letto attualmente adibita a studio, lavanderia ed un bagno con vasca e doccia.
Una scala interna conduce alla zona notte sita al PIANO PRIMO e costituita da 4 ampie e luminose camere matrimoniali di cui due con accesso diretto al terrazzo panoramico di 40 mq, disimpegno e bagno con vasca.
Completa la proprietà box auto di 40 mq, accessibile sia dall’interno dell’abitazione che dotato di ingresso indipendente ed un giardino di circa 700 mq di cui una parte pavimentata.
Una villa che unisce bellezza e comodità, questa soluzione abitativa gode di una posizione centrale, a pochi passi da tutti i servizi essenziali: scuole, negozi, trasporti e molto altro.
Una casa pensata per chi vuole vivere in tranquillità, senza rinunciare alla praticità di avere tutto a portata di mano. .
DETTAGLI AGGIUNTIVI
La casa è stata edificata fine anni '70 e anni '80 e l'interno si trova in discrete condizioni.
Dati tecnici: infissi doppio vetro/legno con persiane in ferro, porte interne in legno e portone d’accesso blindato riscaldamento autonomo con termosifoni che è alimentato da gas diretto, condizionatore al piano terra nella camera, inoltre vi è acqua diretta e fognatura comunale.
A Morlupo troviamo tutti i principali servizi come: scuole, poste, macelleria, bar, farmacia il casello autostradale di Castelnuovo di Porto si trova a circa 15 minuti di auto, mentre la Via Flaminia e la stazione di Morlupo, tratta Roma-Viterbo, distano circa 300 metri.
E' l'immobile adatto a chi desidera avere una casa indipendente con giardino a massimo un'ora da Roma, nella tranquillità della campagna romana , ad un passo dai servizi.
Per informazioni contattare il n. 06.89876224
scrivere una mail grupposabinamorlupo@gmail.com
whastapp 351.5292369

